Wohnfläche
210 m²
Zimmer
0
Etage
Fertigstellung
03/2026

Objektbeschreibung

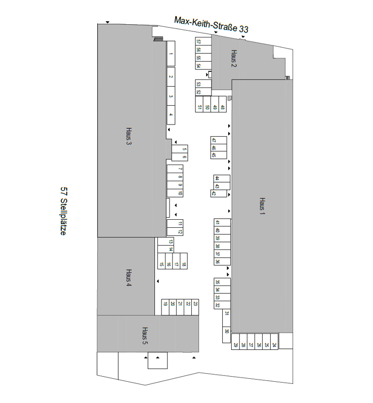
Die angebotene Büroeinheit liegt im 1. Obergeschoss eines gepflegten Büro- und Geschäftsgebäudes (Haus 2, Einheit 101) und umfasst ca. 210 m². Stellplätze befinden sich direkt vor der Einheit. Zusätzliche Parkmöglichkeiten können bei Bedarf kostenpflichtig angemietet werden.

Ausstattung

Die Büroeinheit bietet eine funktionale Raumaufteilung mit mehreren, separat nutzbaren Büroräumen sowie getrennten WC-Anlagen. Die gesamte Einheit ist durchgehend gefliest. Die modern gestalteten WC-Bereiche sind mit weißen Wandfliesen und anthrazitfarbenen Bodenfliesen ausgestattet und unterstreichen den gepflegten Gesamteindruck.

Lage

Bergerhausen ist ein südöstlich des Essener Stadtkerns gelegener Stadtteil mit rund 11.500 Einwohnern. Durch seine verkehrsgünstige Lage bietet Bergerhausen eine direkte Anbindung an die A52, die im nahegelegenen Autobahndreieck Essen-Ost in die A40 übergeht. Innerhalb des Stadtteils bildet die Ruhrallee als Teil der Bundesstraße 227 die zentrale Verkehrsachse und gewährleistet eine schnelle Verbindung in die Essener Innenstadt sowie in die umliegenden Stadtgebiete

Umgebungskarte ansehen

Sonstige Angaben

Haben wir Ihr Interesse geweckt? Dann vereinbaren Sie noch heute ein Besichtigungstermin mit uns. Bei weiteren Fragen stehen wir Ihnen gerne zur Verfügung.

Raumangebot

Raum Fläche
Büro- und Geschäftsgebäude 210.00 m²
Gesamtfläche 210 m²

Ausstattung

Ausstattung

  • Bodenbelag: Fliesen
  • Ausstattungsqualität: Normal

Heizung

  • Zentralheizung

Zustand

  • Zustand: Gepflegt

Energie

  • Energieausweis vorhanden

Bildergalerie

Essen-Bergerhausen // Attraktive Bürofläche zu vermieten
Essen-Bergerhausen // Attraktive Bürofläche zu vermieten
Essen-Bergerhausen // Attraktive Bürofläche zu vermieten
Essen-Bergerhausen // Attraktive Bürofläche zu vermieten
Essen-Bergerhausen // Attraktive Bürofläche zu vermieten
Essen-Bergerhausen // Attraktive Bürofläche zu vermieten
Essen-Bergerhausen // Attraktive Bürofläche zu vermieten
Essen-Bergerhausen // Attraktive Bürofläche zu vermieten
Essen-Bergerhausen // Attraktive Bürofläche zu vermieten
Essen-Bergerhausen // Attraktive Bürofläche zu vermieten
Essen-Bergerhausen // Attraktive Bürofläche zu vermieten
Essen-Bergerhausen // Attraktive Bürofläche zu vermieten
Essen-Bergerhausen // Attraktive Bürofläche zu vermieten
Essen-Bergerhausen // Attraktive Bürofläche zu vermieten
Essen-Bergerhausen // Attraktive Bürofläche zu vermieten
Essen-Bergerhausen // Attraktive Bürofläche zu vermieten
Essen-Bergerhausen // Attraktive Bürofläche zu vermieten
Essen-Bergerhausen // Attraktive Bürofläche zu vermieten

Objektdaten

Objektart: Büro- und Geschäftsgebäude
Adresse: Max-Keith-Straße 33
Ort: 45136 Essen
Stockwerk:
Aufzug: Nein

Preise

Miete: Auf Anfrage

Lage

Max-Keith-Straße 33, 45136 Essen