Wohnfläche
68 m²
Zimmer
2
Etage
1
Fertigstellung
03/2026

Objektbeschreibung

Hier präsentiert sich eine großzügig geschnittene Maisonette-Wohnung in einem schönen Fachwerkhaus; mit herrlichem Blick über die Stadt. Maisonnette: mit eigener, innerhalb der Wohnung liegender Treppe. Die Einheit liegt zentral am Marktplatz -direkt gegenüber dem Geburtshaus von Doktor Oetker in Obernkirchen. Geschäfte des täglichen Gebrauchs sind schnell zu erreichen.

Ausstattung

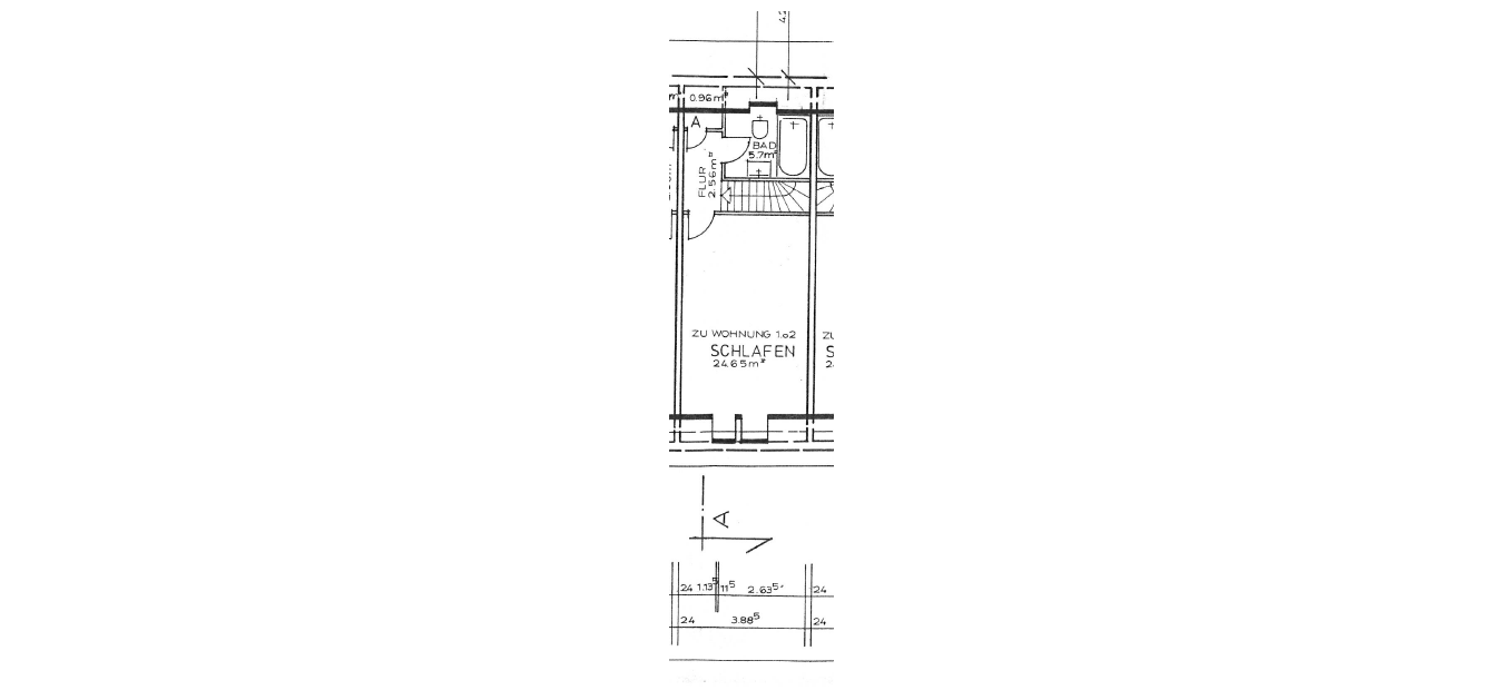
Die gemütliche Wohnung teilt sich wie folgt auf: 1. OG - Küche, Wohnzimmer, Flur inkl. Zugang zur Terrasse 2. OG - Schlafzimmer, vollständig renoviertes Badezimmer, Abstellraum Bad und Küche sind gefliest. Die restlichen Räume sind teilweise mit einem Vinyl-Designbelag oder Laminat in Holzoptik verlegt ausgestattet.

Lage

Obernkirchen liegt an der Bundesstraße 65 zwischen Bückeburg und Stadthagen. Der waldreiche Bückeberg nimmt einen großen Teil der Stadtfläche ein. Durch das Stadtgebiet verläuft westlich der Kernstadt die B 65 von Hannover nach Minden durch die Ortsteile Gelldorf und Vehlen. Die nächstgelegene Anschlussstelle zur BAB 2 befindet sich im benachbarten Bad Eilsen. Der ÖPNV wird durch die Schaumburger Verkehrs-Gesellschaft mit mehreren Linien betrieben. Der Bahnhof Obernkirchen liegt an der Bahnstrecke Rinteln–Stadthagen.

Umgebungskarte ansehen

Sonstige Angaben

Haben wir Ihr Interesse geweckt, dann vereinbaren Sie noch heute einen Besichtigungstermin mit uns. Für Fragen stehen wir Ihnen gerne zur Verfügung.

Raumangebot

Raum Fläche
Fläche 68.00 m²
Gesamtfläche 68 m²

Ausstattung

Heizung

  • Zentralheizung

Zustand

  • Zustand: Saniert

Ausstattung

  • Ausstattungsqualität: Normal

Energie

  • Energieausweis vorhanden (Bedarf: 190,00 kWh/(m²*a))

Grundriss 1

Grundriss

Grundriss 2

Grundriss

Bildergalerie

Obernkirchen // 2-Zimmer Maisonette-Wohnung (102) zu vermieten
Obernkirchen // 2-Zimmer Maisonette-Wohnung (102) zu vermieten
Obernkirchen // 2-Zimmer Maisonette-Wohnung (102) zu vermieten
Obernkirchen // 2-Zimmer Maisonette-Wohnung (102) zu vermieten
Obernkirchen // 2-Zimmer Maisonette-Wohnung (102) zu vermieten
Obernkirchen // 2-Zimmer Maisonette-Wohnung (102) zu vermieten
Obernkirchen // 2-Zimmer Maisonette-Wohnung (102) zu vermieten
Obernkirchen // 2-Zimmer Maisonette-Wohnung (102) zu vermieten
Obernkirchen // 2-Zimmer Maisonette-Wohnung (102) zu vermieten
Obernkirchen // 2-Zimmer Maisonette-Wohnung (102) zu vermieten
Obernkirchen // 2-Zimmer Maisonette-Wohnung (102) zu vermieten
Obernkirchen // 2-Zimmer Maisonette-Wohnung (102) zu vermieten

Objektdaten

Objektart: apartment
Adresse: Deutschland, 31683 Obernkirchen, Markt 5
Ort: 31683 Obernkirchen
Stockwerk: 1
Aufzug: Nein

Preise

Miete: 510,00 €
Betriebskosten: 65,00 €
Heizkostenpauschale: 165,00 €

Lage

Deutschland, 31683 Obernkirchen, Markt 5, 31683 Obernkirchen