Objektbeschreibung
Zum Verkauf steht ein lichtdurchflutetes Wohn- und Geschäftshaus mit einer Grundstücksfläche von ca. 1.577 m², das sich durch eine attraktive Nutzungsmischung aus Wohnen und Gewerbe auszeichnet. Im 1. Obergeschoss befinden sich drei Wohneinheiten mit einer gesamten Wohnfläche von ca. 204 m². Alle Wohnungen sind derzeit vermietet und erzielen monatliche Mieteinnahmen von ca. 1.211,00 €. Das Erdgeschoss beherbergt zwei gut etablierte Gewerbeeinheiten, die ebenfalls vollständig vermietet sind: Gewerbeeinheit 1: Kampfsportschule mit Jugendhilfeangebot Gewerbeeinheit 2: Einzelhandelsgeschäft für Hundefutter und -Zubehör Die monatlichen Mieteinnahmen aus den Gewerbeflächen belaufen sich auf ca. 2.800,00 €.
Ausstattung
Die Gewerbeeinheiten überzeugen durch große Fensterfronten mit hervorragender Belichtung. Gewerbeeinheit 1 ist mit einem Laminatboden ausgestattet, während Gewerbeeinheit 2 über einen Fliesenboden verfügt. Kundenparkplätze stehen in ausreichender Anzahl zur Verfügung. Auch die Wohneinheiten sind mit Laminatböden ausgestattet.
Lage
Meppen ist die Kreisstadt des Landkreises Emsland und liegt im Westen des Bundeslandes Niedersachsen, nahe der Grenze zu den Niederlanden. Die Stadt befindet sich an der Mündung der Hase in die Ems und ist etwa 18 Kilometer östlich der niederländischen Grenze. Meppen ist bekannt für seine bewaldeten Talsandgebiete und die Europastraße E 233, die durch das Gebiet verläuft. Die Stadt hat mehrere Stadtteile, darunter Apeldorn, Bokeloh und Borken, und ist ein beliebtes Ziel für Touristen aufgrund ihrer kulturellen und historischen Bedeutung.
Umgebungskarte ansehen
Sonstige Angaben
Haben wir Ihr Interesse geweckt? Dann freuen wir uns auf Ihren Anruf. Bei weiteren Fragen können Sie sich gerne bei uns melden!
Raumangebot
| Raum | Fläche |
|---|---|
| Wohn-/ Geschäftshaus | 205.00 m² |
| Gesamtfläche | 205 m² |
Ausstattung
Heizung
- Zentralheizung
Zustand
- Zustand: Keine Angabe
Ausstattung
- Ausstattungsqualität: Normal
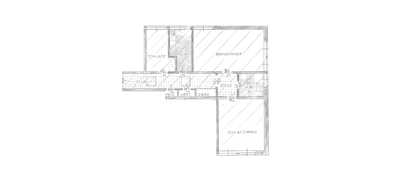
Grundriss 1
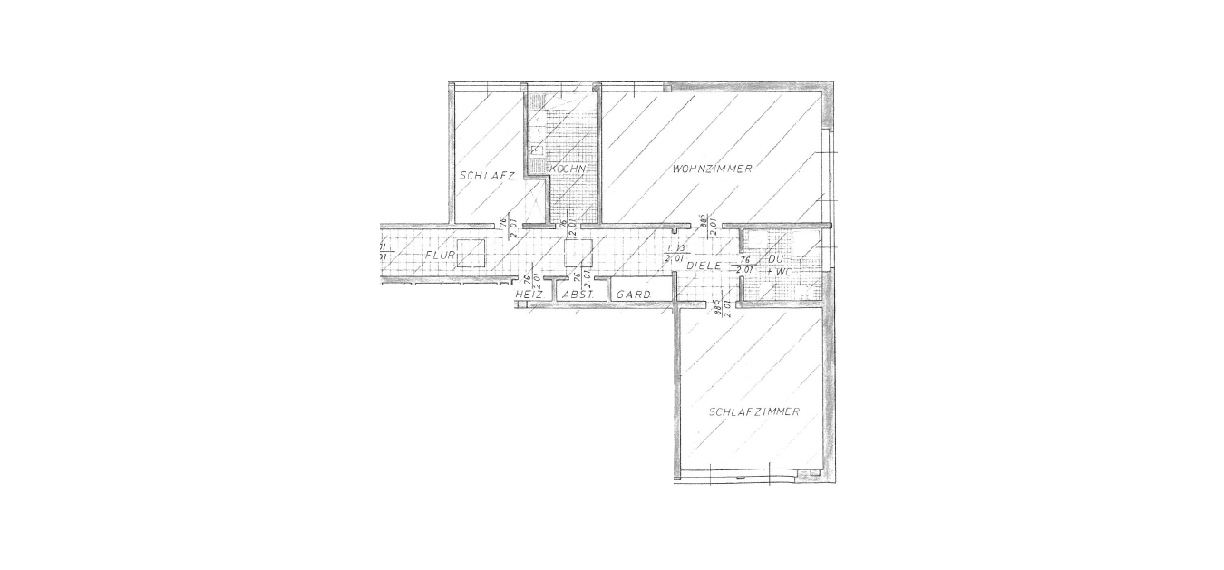
Grundriss 2
Bildergalerie
Objektdaten
Preise
Lage
Marienstraße 16, 49716 Meppen